Institut Saint-Raphael à Sion

Lieu:
Sion (VS)
Année:
2023
Type:
Concours

Architecture:
Kündig & El Sadek
Ingénieur Civil:
De Saxo Ingénieurs

La synthèse des valeurs du foyer a formé la colonne vertébrale de nos réflexions. Elle souligne l'aspect multi-facette nécessaire à l'accompagnement offert par les éducateurs; autonomie personnelle, vie collective, formation professionnelle et temps libre participent de concert à la réinsertion sociale des jeunes. Nous avons souhaité inclure ces axes dans notre proposition. Lové contre la colline, le projet offre une façade ouverte sur l’extérieur au sud et une vue contemplative sur la végétation et la roche au nord. À travers ses trois étages il incarne la pluralité des approches offertes par le foyer.

L'institution, le socle.

Le rez-de-chaussée accueille le corps enseignant ainsi que les locaux administratifs et techniques. Minéral et robuste, il est un socle qui ancre le bâtiment dans son contexte. L’entrée principale à l’est sert d’interface entre la vie au foyer et le monde extérieur. Le bureau des éducateurs y est accolé au vestibule d’entrée, favorisant l’accueil et les rencontres informelles tout au long de la journée entre les jeunes et leurs éducateurs. Un escalier fait le lien avec le premier étage.

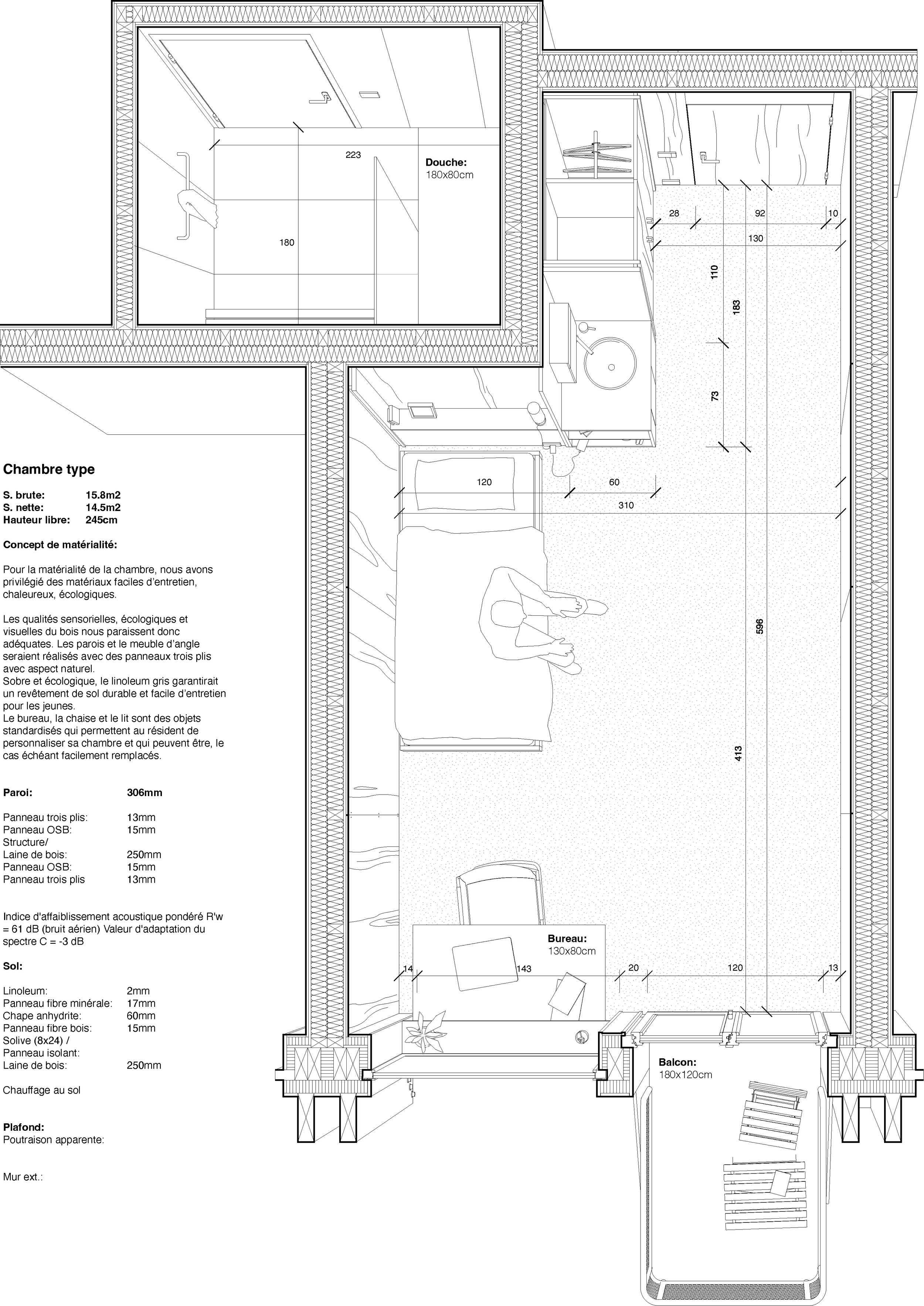
L'autonomie personnelle, l’étage des chambres

Sous une toiture fine et ventilée, l'étage de la zone de nuit est une grande ossature en bois. Accueillant et chaleureux, ce matériaux local donne un aspect hospitalier à ces espaces. Les chambres y sont disposés en éventail, orientées vers le sud. Dans leur prolongement les balcons, espacés les uns des autres, permettent une mise à distance sans entrave visuelle entre les chambres. Le mobilier est libre et permet aux occupants de personnaliser leur chambres. La position centrale ainsi que la forme incurvée du bâtiment facilitent la veille active. En bout de couloir un balcon et un petit salon permettent des moments de ressourcement. Face à l’unique cage d’escalier de cet étage, une passerelle permet un accès direct au terrain de sport et à la colline.

La formation professionnelle et la vie collective, l'espace interstitiel

Entre ces étages de pierre et de bois se trouve un espace hybride. Il est le lieu privilégié de la vie collective et du développement personnel. C’est un plan libre qui offre une grande flexibilité dans l’organisation d’activités éducatives. Les espaces connectés ainsi que les larges façades vitrées offrent des échappées visuelles qui réduisent le sentiment d’enfermement. A l’est, la zone communautaire est traversante et étend son espace sur la terrasse qui communique avec la colline. Une cuisine ouverte avec îlot et la salle à manger sont idéalement orientés pour le déjeuner. À l’ouest, les espaces pédagogiques profitent des dernières lueurs pour des cours du soir ainsi que du dégagement sur la parcelle boisée voisine. Le sol d’aspect minéral et la charpente du plafond caractérisent l’espace, entre rigueur et familiarité.

Le temps libre, la colline

Enfin, c’est par la création d’une dépendance dans la colline que le projet étend son spectre et exploite tout le potentiel du lieu. Un terrain de sport adossé à un petit local de stockage et d’un belvédère se logent dans la topographie en profitant en partie du nivellement de l’ancienne piste de pétanque. L’ensemble revalorise la colline en un véritable outil pédagogique multi-fonctionnel propice à l’exercice mais également à la détente et aux évènements communautaires. D’autres usages restent à inventer par ses futurs occupants.